DUKA:s VillaVent-enheter är optimerade för att uppfylla de senaste tekniska kraven på hög värmeåtervinningsgrad och mycket låg energiförbrukning.
Enheten kan monteras på vindar eller i tvättstugor och med fasta eller flexibla rör skapas ett hem där frisk luft ständigt tillförs och värmen från fuktiga rum återvinns.
Aggregatet levererar ett fritt luftflöde på 380 m3/h och 220 m3/h vid 70 Pa och kan användas i bostäder upp till 200 m3/h. Aggregatet är universellt, vilket innebär att bak- och frontplåt kan bytas ut, vilket underlättar installationen.
I enhetens frontplåt finns två filterluckor med tumskruvar, vilket gör det enkelt att inspektera och byta filter.
Enheten har ett by-pass-spjäll som ger en kylande effekt på sommaren, eftersom frånluften leds förbi motströmsväxlaren och tilluften inte värms upp ytterligare.
Enheten levereras dessutom med:
- Användning av Wi-Fi
- Universellt hölje
- Inklusive smutsfilter
- Med energisnål EC-motor.
- Värmeåtervinningsgrad upp till 98%.
- Uppfyller kraven i gällande byggregler.
Appkontroll av Aggregat 380 Wi-Fi
Med DUKA Smart App kan enheten enkelt manövreras. Enheten kan anslutas till hemmets Wi-Fi och kan styras från vardagsrummet, sovrummet och köket. I appen kan du ändra ventilationshastigheten, ange ett veckoschema för att anpassa ventilationen till hemmets rytm och reglera luftvolymerna för de olika ventilationshastigheterna kan enkelt justeras i appens avancerade meny och många andra funktioner.
Kontrollpanel för Villa Ventilationsaggregat
Som tillval finns en kontrollpanel som gör det enkelt och smidigt att använda aggregatet. Med kontrollpanelen kan du välja mellan tre ventilationshastigheter, visa filterlarm och andra larm samt använda bypass.
Artikelnummer
Enhet | Artikel nr. | DB nej. |
Power Pack 380 Wi-Fi | 396669 | 2083135 |
Artikelnummer tillbehör
Enhet | Artikel nr. | DB nej. | Rörmokare nej. |
G4 Dammfilter | 396722 | 2083193 | |
F7 Pollenfilter | 396722 | 2083280 | |
Vattenlås | 334218 | 1729205 | 358891932 |
Fuktsensor | 340349 | 1808757 | 358891990 |
Ljuddämpare i metall DSLU | 116425 | 1880798 | |
Flex ljuddämpare | 337608 | 1797811 | |
Kontrollpanelen | 396683 | 2083193 |
Ett hem med frisk, välventilerad luft dygnet runt
Många byggnader är idag så välisolerade och täta att de inte kan andas. Detta har ett pris i form av problem med inomhusklimatet som orsakas av fuktig och förorenad luft. Människor tillbringar i genomsnitt 90% av dagen inomhus - det är över 20 timmar - så det är otroligt viktigt att säkerställa ett bra inomhusklimat, vilket du kan göra med ett Villa Ventilationsaggregat från DUKA.
Dimensionering av ballastmaterial
Det finns två krav i byggreglerna för dimensionering av ett ventilationsaggregat;
Det första kravet beror på bostadens storlek, med ett minimikrav på 0,3 l/s per kvadratmeter bostadsyta.
2:a kravet beror på antalet våtrum i bostaden.
Det värde som är störst enligt de två beräkningarna ovan är min. ventilationskravet.
Kapacitet och värmeåtervinningsgrad (VGV) enligt kraven i BR 18 och 70 Pa i systemets mottryck.
Aggregat | Anslutning | Kapacitet | Värmeåtervinningsgrad | Område | Kapacitet friblåsning |
VillaVent 90 L | Ø100 / Ø125 mm | 28 l/s | 82-94 % | 90 kvadratmeter | 130 l/s |
Genin 90 L | Ø100 / Ø125 mm | 28 l/s | 73-88 % | 90 kvadratmeter | 130 l/s |
Power Pack 380 Wi-Fi | Ø160 mm | 60 l/s | 87% | 200 kvadratmeter | 105 l/s |
Power Pack 200 Topp Wi-Fi | Ø125 mm | 44 l/s | 86 % | 130 kvadratmeter | 55 l/s |
Power Pack 450 Topp Wi-Fi | Ø160 mm | 78 l/s | 86% | 260 kvadratmeter | 125 l/s |
Power Pack 690 Topp Wi-Fi | Ø200 mm | 1808757 | 86 % | 380 kvadratmeter | 191 l/s |
Minimikrav för våtrum
Rom | Luftvolym |
Köksfaciliteter | 20 l/s15 |
Badrum | 15 l/s |
Grovkök | 10 l/s |
Separat toalett | 10 l/s |
Till exempel en bostad på 170 kvadratmeter med kök, tvättstuga och två badrum:
1:a kravet enligt bostadens storlek: 51 l/s (170 * 0,3)
2:a våtrumskravet: 60 l/s (20+10+15+15)
Det är här som våtrumskravet är som störst. Det innebär att denna bostad måste ha ett ventilationsaggregat med en kapacitet på min. 60 l/s.
Specifika utrymmeskrav finns i byggregler.
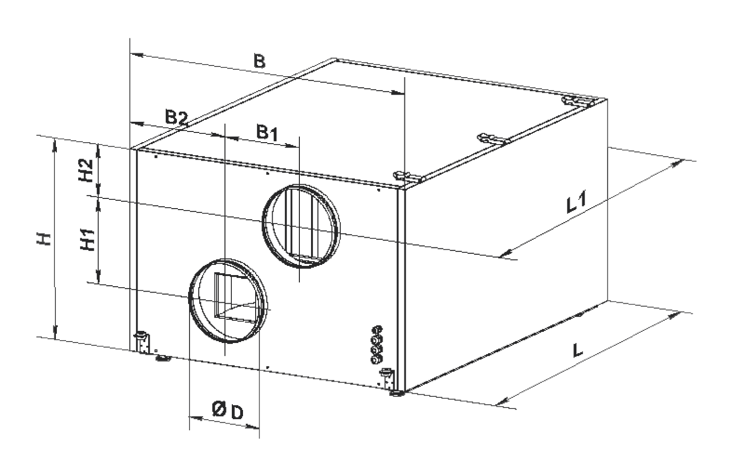
Mått i mm
Mått i mm | |
ØD | 157 |
B | 568 |
B1 | 190 |
B2 | 189 |
L | 1083 |
L1 | 1180 |
H | 479 |
H1 | 193 |
H2 | 118 |


























